aix-en-provence

Salon de coiffure 42m2

 
 

Demande clients :

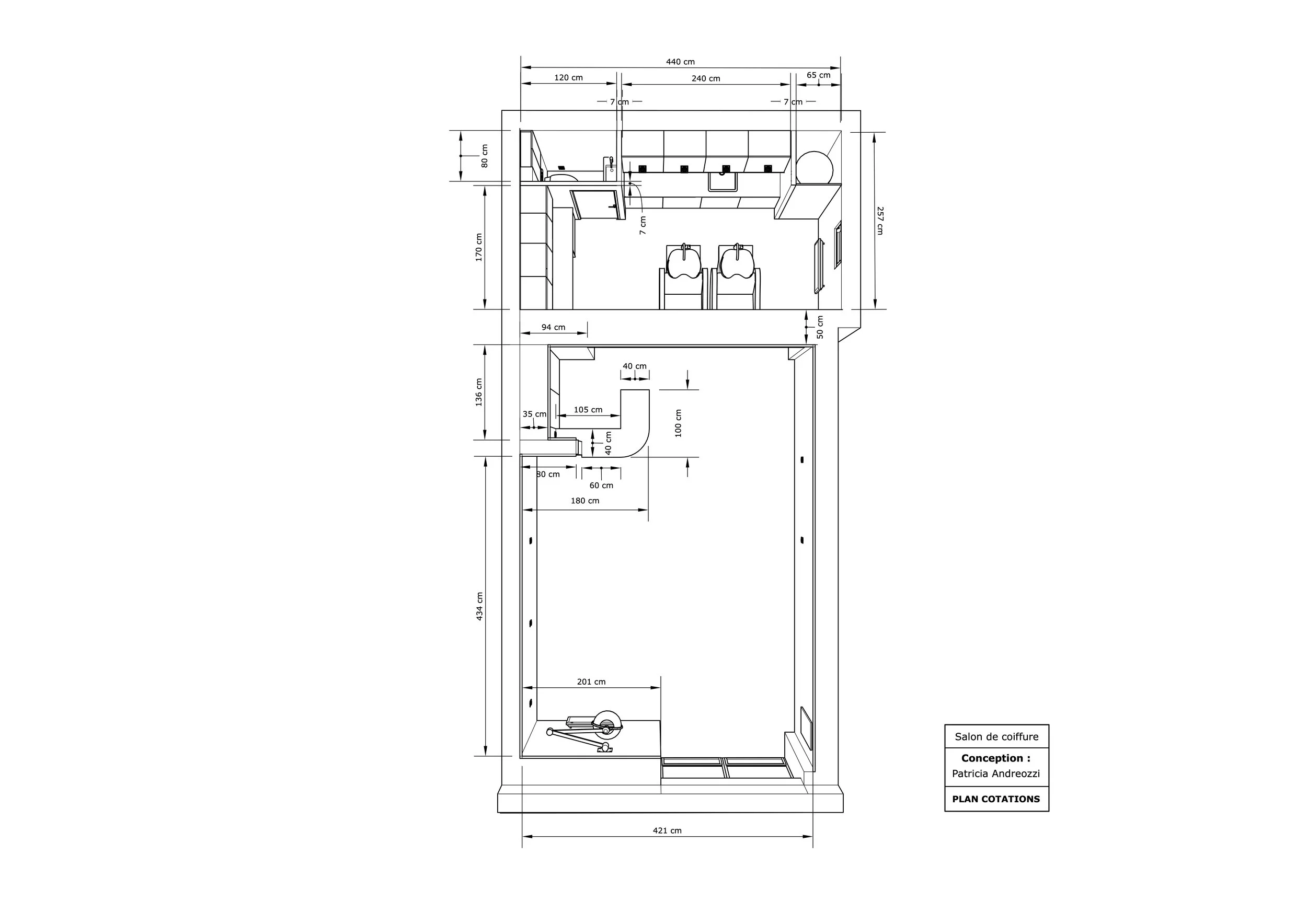
Repenser l'espace en travaillant autour des différents postes de travail essentiels à l’activité d’un salon de coiffure, avec une remise aux normes du système électrique, des évacuations des eaux, ajout de nombreux rangements et une ambiance lumineuse empreinte de sérénité et propice au bien-être. 5 espaces de travail ont été délimités : l’espace accueil, l’espace caisse, l’espace coiffure avec 5 postes de travail, un espace restauration pour les employés et un espace bac shampooing.

Réorganisation totale des espaces de travail basée sur l’ergonomie :

L'espace a totalement été repensé afin de correspondre aux différentes attentes de la cliente. Les réseaux électrique et plomberie ont totalement été remis aux normes, et côté architecture commerciale le nouvel agencement dispose désormais de :

  • Un espace d'accueil avec dressing intégré avec tout le réseau wifi nécessaire ( téléphone, box internet, enceinte Google home pour la diffusion de la musique via le smartphone ), ainsi que du rangement en partie basse pour la papeterie et autres effets personnels.

  • Un espace vente additionnelle suspendu.

  • Un espace coiffure avec 5 postes de travail homme et femme.

  • Un espace bac à shampooing travaillé façon "alcôve" et intégrant rangement, plan de travail, évier, cumulus 300L économique, lave-linge et sèche-linge à condensation full intégrables.

  • Un espace WC avec lave-main intégré

  • Un espace "détente" alloué au personnel, disposant d'un plan de travail avec machine à café et bouilloire, d'un frigo sous-plan encastrable, ainsi qu'un linéaire de rangements hauts avec micro-onde intégré.

  • Un espace d'attente : afin de libérer l'espace au maximum et d'agrandir visuellement la superficie du salon, nous avons opté pour un espace d'attente réduit mais suffisant, et jouer sur l'art de vivre méditerranéen avec poufs et bout de canapé en guise de petite table basse.

Ambiance méditerranéenne lumineuse et minérale :

Le style Méditerranéen revu dans une version plus sobre et minimaliste : un retour à l’essentiel avec un décor minéral, lumineux et dépouillé, qui fait la part belle aux matières brutes et naturelles, et aux surfaces imparfaites façon Wabi Sabi. Ici on s’inspire des savoir-faire artisanaux du pourtour méditerranéen. Ainsi les murs se parent d’enduit à la chaux, de stuc vénitien, de tadelakt, les revêtements sont de bonne manufacture : zelliges, bejmat, terre cuite, et les matériaux utilisés sont nobles et robustes : bois, travertin noce ou encore poterie émaillée. Le mobilier et la décoration s’inspire de la nature dans son essence originelle avec des formes arrondies et organiques, quasi monolithique, des fibres naturelles comme le voile de lin ou l’organdi de coton qui filtre la lumière créant une atmosphère douce, empreinte de sérénité, ou encore la végétation extérieure qui s’invite à l’intérieur ( Olivier, Cactées, etc ). L’harmonie de couleurs est douce et chaleureuse, des camaïeux de blancs et beiges travaillés en ton sur ton avec des effets de matières et finitions différentes, qui côtoient des ocres et terracotta plus intenses.

Budget total : 40 000€

 
 

photos avant projet

Etat des lieux

 
next